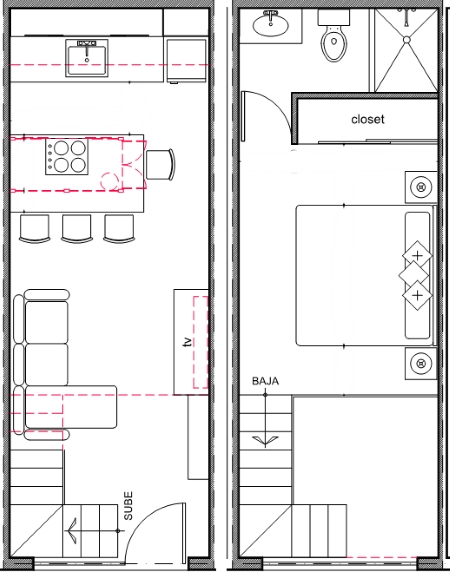
Apartamento Una Recámara - Loft
Modelo 1 - 45 m2

Apartamentos amplios, con exclusivas áreas comunes, piscina infinita, fogatas, parrilla para barbacoa para disfrutar con los amigos; Además, puede disfrutar de la vista del océano Pacífico y la belleza de los paisajes naturales que hacen de Cabo San Lucas un lugar tranquilo, sereno y hermoso para vivir.





Planos

El espacio perfecto

Apartamento Una Habitación Loft Modelo 1
Cocina Completa 1
Recámara(s) 1
Baño(s) 1
Area de Lavado -
Closet de Madera 1
Balcon 1
Piso de Ceramica 60x60
Area Total 45 m2



Unidades Disponibles - una recámara tipo Loft


Unidad Modelo SQ M Recámara(s) Baño(s) Vista
110 Modelo 27211.5x
111 Modelo 27211.5x
112 Modelo 14511x
113 Modelo 1 4411x
114 Modelo 1 4411x
115 Modelo 14511x
116 Modelo 1 4511x
117 Modelo 1 4411x
118 Modelo 1 4411x
119 Modelo 1 4511x

Descubre tu nueva casa que se adapta a tu estilo de vida

Nuestras residencias de una y dos habitaciones tienen un diseño contemporáneo, respetando al máximo la naturaleza de Los Cabos.